キソホールダー



特徴
- 既存住宅の施工に配慮したサイズをご用意
- 芯々施工の場合はホルダーのスライド調節可能
- 鋼板を立体的にプレス、高い剛性を実現しました
用途・特徴
強度不足の土台と基礎のつながりを強固にサポート!
既存住宅への施工に配慮した専用設計です。土台と基礎を高い強度でしっかり固定し、縦の突き上げや横揺れから土台の浮き・ズレを防ぎます。
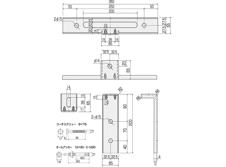
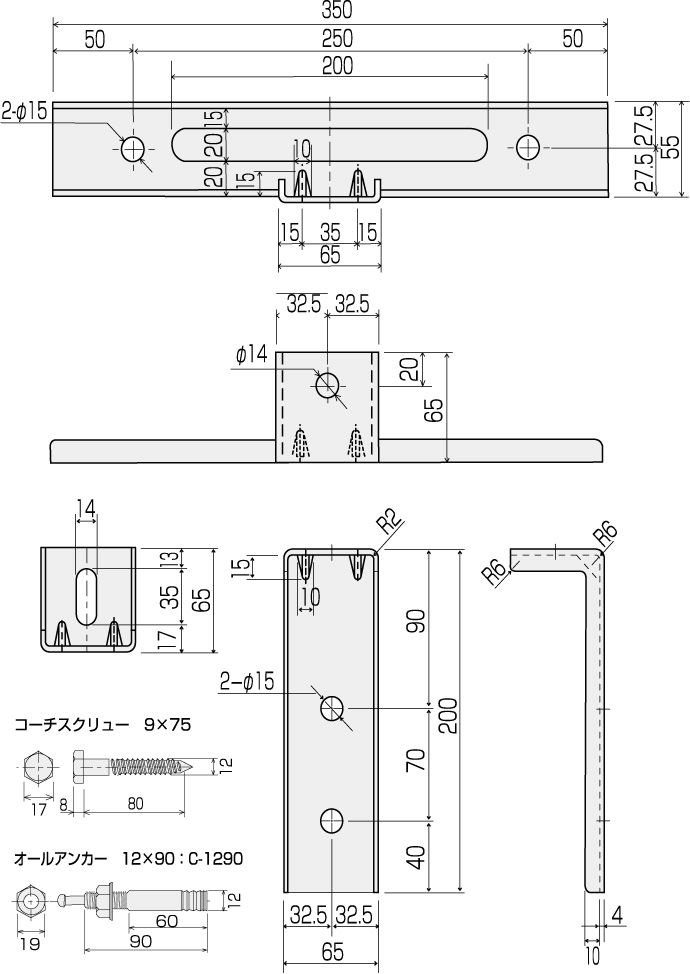
仕様
| キソホールダー KH-350 | |
|---|---|
| 材質 | 亜鉛鉄板SGHC Z - 27 t=4.0 |
| 表面処理 | 焼付塗装/パールシルバー |
| 入数 | 6/ケース |
| 付属部品 | M-12オールアンカー(2本/枚)コーチスクリュー(2本/枚)ナット、平座金、スプリングワッシャー、六角ボルト(2/枚)、モスグリーンゴムパッド付 |
仕様図

施工例
取付図

販売取扱い店
製品カタログ
カタログの閲覧にはパスワードが必要となります。
パスワードをお持ちでない方は、登録フォームより登録をお願いします。

